Works
Detail
*2

共働学舎新得農場男子寮
Kyodo Gakusya Shintoku Farm Dormitory
寮
北海道新得町
構造: | RC造,木造 |
階数: | 地下1階、地上1階 |
敷地面積: | 556.60㎡ |
建築面積: | 177.39㎡ |
延床面積: | 255.53㎡ |
竣工: | 2012年 |
諧調の建築
共働学舍新得農場は、様々な理由で社会から距離を置いて生活を送らざるを得なくなった人達のために開かれた。この農場で生産されているものは、様々であるが、特にここで創られたチーズは、地元の人々に愛されるだけではなく世界的な評価も獲得している。この建築は、その農場で共に働き、住まう人たちのための男子寮である。
農場は、北海道の中央部に位置する十勝、新得にある。新得は、太平洋、十勝平野という広大な広がりを前面に、日高山脈のうねりを背にして、階層的諧調とでもいうような北海道独特のおおらかな地勢をもっとも感じる場所にある。共働学舎新得農場は、その大きな地勢の中でも日高山脈の端部、新得山のふもとに連なる牛乳山を背に拓かれている。そして、この建築の敷地は、そこに拓かれた農場を前面に、おおらかな斜面を背にするところにある。この建築を構想するにあたり、そのような大きな広がりからこの建築の敷地まで凝縮してくるこの場所独特の階層的諧調を、ここで共に働き、集い住まう人々の生活の舞台に朴と、より凝縮して織り込むことを構想した。
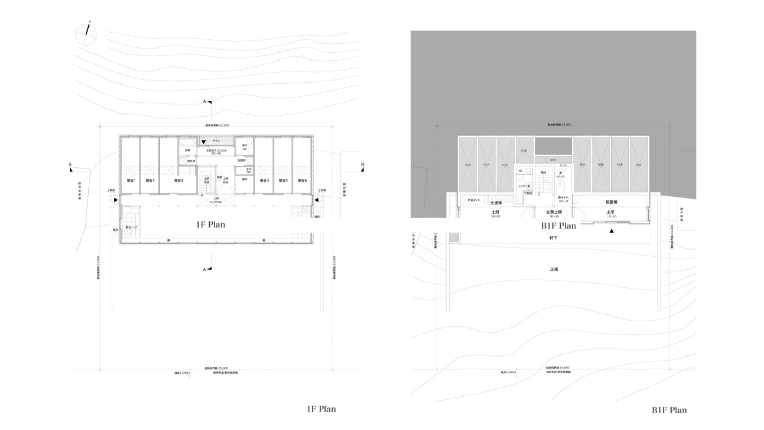
建築は、単純な構造形式を骨格として階層的に構成されている。階は、2層に分節され、そのそれぞれが地面に接している。そしてそれぞれの層にも階層的分節が試みられている。下層(地下1階)は、建物前面に接続する広場とともに敷地南側の農場での作業と上層(1階)の住居部分とをつなぐ機能的緩衝帯であり、特に冬場では、厳しい寒さに抗すための風除室としての役割も担う。そのため建物に寄り付きが必要であるが、上層をおよそ1間張り出させることによっておおらかな庇を形成させることとした。これによってこの建物に特徴的な佇まいが形成されている。上層は、その南側に広大な広がりを臨む連窓を擁する広間を配し、広間は、階段室の吹き抜けから天窓までの垂直空間を介して北側斜面の風景と接続され、ここに集う人達の交歓の場となる。広間を前面に北側斜面を背に寮室を配し、そのそれぞれにも天窓を設けた。天窓は、建築に設けられた換気窓の開閉と連携しながら夏場には、良好な風も導く。
おおらかな階層的構成のうちに様々な光、風が、この建築内部で重々無尽に響きあい、ここに住まい、集う人々の生活に緩やかな諧調が与えられる。
Use: Dormitory
Site: Shintokucho, Hokkaido
Structure: | RC,Wooden |
Total floors: | B1F,1F |
Site area: | 556.60㎡ |
Building area: | 177.39㎡ |
Total floor area: | 255.53㎡ |
Completion: | 2012 |
Architecture with Harmonious Modulation
The Kyodogakusha Shintoku Farm is a place opened for people who, for various reasons, have been compelled to live apart from society.
The farm produces a wide range of goods, but in particular, the cheese made here has not only become beloved by local residents but has also earned international recognition. This building serves as a men’s dormitory for those who work and live together on the farm.
The farm is located in Shintoku, in the Tokachi region, which lies in the central part of Hokkaido. Facing the vast expanse of the Pacific Ocean and the Tokachi Plain, with the undulating Hidaka Mountain Range behind it, Shintoku is a place where one can feel most deeplythe uniquely generous terrain of Hokkaido—a sort of layered modulation. Kyodogakusha Shintoku Farm is situated at the foot of Mount Shintoku, backed by Milk Hill, one of the end ridges of the Hidaka Mountains. The site for this building sits at the base of a gentle slope,with the farm spreading out in front of it.
In conceiving this architecture, the aim was to condense and weave into the life stage of the people who live and work together here the distinctive layered modulation of this place, which condenses the vast terrain down to this specific site.
The architecture adopts a simple structural form as its skeleton and is organized in a layered manner. The building has two levels, each in contact with the ground, and within each level, further modulation is attempted.
Within this generously layered composition, light and air resonate freely and richly throughout the interior of the building, gently bestowing a sense of harmonious modulation upon the lives of those who live and gather here.
受賞
日本建築家協会優秀建築選2013 |
Awards
Selected, AIJ Selected Architectural Works 2013 |
掲載
新建築住宅特集2013年2月号 |
日本建築学会北海道建築作品発表会作品集 2012 Vol-32 |
北の住まいを建築家とつくろう vol.5 |
Publication
Shinkenchiku Jutakutokushu 2013:02 |
AIJ Hokkaido Architectural Works Collection 2012 Vol.32 |
Let’s create a Northern Home with an architect,Vol.5 |

















