Works
Detail
*1

仏生山の家
House in Busshouzan
住宅
香川県高松市
構造: | 木造 |
階数: | 地上1階 |
敷地面積: | 261.01㎡ |
建築面積: | 97.23㎡ |
延床面積: | 87.56㎡ |
竣工: | 2023年 |
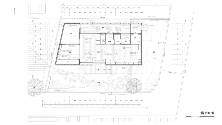
夫婦二人で暮らす自宅の計画である。
この建築が在る仏生山町は、周囲の山並に抱かれた四国香川県、高松平野のほぼ中央部に位置するまちである。まちは高松藩主・松平家の菩提寺である法然寺の門前町として形成された。門前町を中心として、かつては、その周囲に長閑な農地が広がる地域であったが、戦後からは、その広がりの中に住宅街がパッチワーク状に造成されてきた。今では、住宅街の密度と農地の広がりとの対比が、まち全体に独特な雰囲気を創り出している。敷地は、その中にあって東側、南側に接道を有し、東側は、農地の広がりに接続されている。この敷地に出会った時、住宅街の幾分の窮屈さと農地の広がりを調停しながら、建築のうち、そと、共に在る日常を異化するように純化された簡素な構成を備えた建築がちょうど良いと感じた。
3寸勾配、1/4間ピッチの梁架構によって屋根が構成される。梁の下端レベルは、住人の手が容易に届く1,800mmから、かなり離れた4,000mmの幅が備わることで身体との接続性、親近性が場所それぞれに変化する。連続する梁のフォルムの下、建築断面は、場所ごとにその姿を変えて内部空間には、重々無尽のざわめきが現れる。
住戸内のアクティビティ、プライバシーと自然光によって創り出される陰翳の綾を企んで、南面の開口は一箇所に絞り北庭からの間接光による採光を行う。北側の壁全面には銀色の角波ガルバリウム鋼板を施し光の反射を促している。北庭に差し込みガルバリウム鋼板に反射した光は、季節の変化に呼応して夏には北庭内に留まり、冬には屋内に届けられる。夏の室内は、昏く涼しく、冬の室内は、明るく温かくなる。
基礎立ち上がりから持ち出されたスラブに開口が設けられドラフトを利用した通風を行うことで屋内に緩やかな空気の流れを創り出すと共に建築の佇まいは水平性が強調された独特なものとなる。
南側に張り出す軒を低く抑え三寸勾配で構成される屋根と季節の野菜を育てる場となる南側の庭は、道路を通行する人の視線を緩やかに空へと運び、界隈に開けを創る。南側に印象的な佇まいをもたらす開口によって建築内部と庭を接続する縁は時々折々の活動を支える場となりながら界隈との交歓の場となる。
Use: Residence
Site: Takamatsu, Kagawa Prefecture
Structure: | Wooden |
Total floors: | 1F |
Site area: | 261.01㎡ |
Building area: | 97.23㎡ |
Total floor area: | 87.56㎡ |
Completion: | 2023 |
The architecture conceived here is where phenomena reside, ever dissimilating the ordinary, albeit a purified simplistic composition.3-in-10 slope beams spaced at a quarter Ken(approx. 450 mm) constitute the roof, and form the space below. The beams’ bottom levels vary from 1,800 mm, within easy reach of the residents, to a more distant 4,000 mm, changing their connectivity and intimacy to human bodies in each area of the house. The repeating forms of beams are wrapped in natural light, ever transforming from place to place and with the lapse of time, and they bring to the space an infinitely overlapping stir.
In consideration of privacy and the weaving shades in the interior, the opening on the south facade is limited to only one, whereas indirect light is let in from the courtyard on the north. The face of the north wall is covered with silver galvalume box rib panels to reflect more light. Sunlight into the north courtyard responds to the seasonal change, staying there when the sun is at the upper culmination on the summer solstice, and is delivered inside when the sun is at the highest point on the winter solstice. The interior, therefore, is darker and cooler in summer, and brighter and warmer in winter. The slab, cantilevered from the plinth, has openings that allow natural draft ventilation to create gentle airflows inside, while giving the building a unique appearance.
The roof, consisting of lowered eaves and the 3-in-10 slope, and the garden on the south that will produce seasonal vegetables, lead the eyes of the passers-by gently up to the sky, creating openness in the rather cramped neighborhood. Through the opening that gives the south facade an impressive appearance, the En (semi outdoor deck) space connects the interior with the garden, serving as a place to embrace seasonal and occasional activities, as well as to interact with the neighborhood.
受賞
日本建築家協会四国支部四国建築賞佳作 |
香川県建築士会•表彰作品高松支部表彰 |
日本建築家協会優秀建築選2025 |
日本建築学会作品選集2025 |
Awards
Honorable Mention, JIA Shikoku Architecture Award |
Commendation, Kagawa Society of Architects |
Selected, JIA Excellent Architecture Selection 2025 |
Selected, AIJ Selected Architectural Works 2025 |
掲載
新建築住宅特集2024年2月号 |
GA Houses 190 |
日本建築学会北海道建築作品発表会作品集 2024 Vol-44 |
Publication
Shinkenchiku Jutakutokushu 2024:02 |
GA Houses 190 |
AIJ Hokkaido Architectural Works Collection 2024 Vol.44 |



































