Projects
Detail

Triplet
SDレビュー 1997
入選・朝倉賞
審査: | 香山 壽夫 渡辺 邦夫 岸 和郎 團 紀彦 |
掲載: | SDレビュー 1997 |
<Triplet/3で構成された家>
提案は、3つの主旨を基として構想されている。
1.形象が、語り過ぎず、単純かつ簡素な構成でありながら豊かな様相を可能 とする住居
2.ヴォリュームを強調しない接地性の高い住居
3.生活に庭が、積極的に取り込まれ、その恵みを享受できる住居
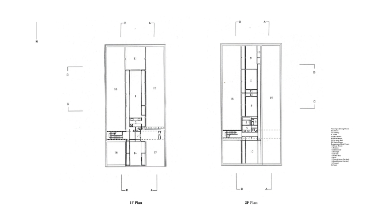
<3つのゾーン>
敷地は、単純に3等分される。
隣地に接するゾーンを庭とし、2つの庭の間のゾーンを居住部分とする。このゾーニングは、やや細長いプロポーションを持つこの敷地において先述の3つの主旨を最も効果的に具現するものとして選択された。
2つの庭は、2層からなる居住部分の性格と連動しつつそれぞれ特色ある様相が付与され異なるレベルに配されている。
<3つの境界素>
庭と居住部をへだてる境界は、3つの境界素からなる。それぞれの境界素は、光のコントロール、機能 、材料、開閉方式が異なり、開閉による様々な組み合わせによって、多様な境界が、構成される。
SD Review 1997
Selected・Asakura Prize
Judge: | Toshio Kohyama Kunio Watanabe Waro Kishi Norihiko Dan |
Magazine: | SD Review 1997 |
< Triplets / A House Composed in Three>
The proposal is conceived based on three main principles:
1.A residence whose form is not overly expressive, yet enables a rich spatial character through a simple and modest composition.
2.A residence with a strong sense of groundedness, avoiding any emphasis on volumetric dominance.
3.A residence where gardens are actively integrated into daily life, allowing the inhabitants to enjoy their benefits.
< Three Zones>
The site is simply divided into three equal parts.
The zones adjacent to the neighboring properties are designated as gardens, with the central zone between them serving as the living area. This zoning strategy was chosen as the most effective means to realize the three aforementioned principles on this relatively elongated site.
The two gardens are placed on different levels and are each endowed with distinct characteristics, corresponding to the two-story configuration of the living space.
< Three Boundary Elements>
The boundary between the gardens and the living area is composed of three distinct elements.
Each boundary element differs in terms of light control, function, material, and method of opening/closing. Through various combinations of opening and closing these elements, a rich variety of spatial boundaries can be created.





