Projects
Detail

1/1・1/2・1/3・1/4
SDレビュー 2015
入選・朝倉賞
審査: | 木下 庸子 安田 幸一 曽我部 昌史 岡村 仁 |
掲載: | SDレビュー 2015 |
夫婦二人のための家である。
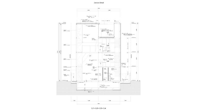
750mm のスリットで隔てられる 4 枚の RC 壁で囲まれた 7,200mm 平方の平面をその中心に据える 75mm 角鋼柱で等価に 4 分割する。そのそれぞれの断面寸法 となる9,600mm は、 それぞれ1に、2に、3に、4 にと等分割されて床が構成される。 床端は床厚のせい150mm と角鋼幅 75mm の溝形鋼で支持され、角鋼柱の座屈を補剛する。 踏面 150mm、蹴上 200mm の階段は、建物外周の RC 壁から片持ちで支持された厚16mm の鋼板で構成される。床、壁、天井、階段は、光沢を持った仕上げとする。
単純な秩序で構成されながらも建築を構成する部位、空間は、様々な相互性を持ち、この場所に招来される光、風によって重々無尽の響きに満たされる。
SD Review 2015
Selected・Asakura Prize
Judge: | Yoko Kinoshita Koichi Yasuda Masashi Sogabe Hitoshi Okamura |
Magazine: | SD Review 2015 |
This is a house designed for a couple.
A square plan measuring 7,200 mm on each side is enclosed by four RC (reinforced concrete) walls, separated by 750 mm slits. At its center, a 75 mm square steel column divides the space equally into four quadrants. Each of these quadrants, with a cross-sectional dimension of 9,600 mm, is further divided into floors in proportions of 1:2:3:4, respectively. The edges of the floors are supported by channel steel sections composed of a 150 mm floor thickness and 75 mm wide steel angle, which also brace the square steel column against buckling. The staircase, with treads of 150 mm and risers of 200 mm, is made of 16 mm thick steel plates cantilevered from the exterior RC wall of the building. The floors, walls, ceilings, and stairs are all finished with a glossy surface.
Despite being composed with a simple order, the architectural elements and spaces exhibit a rich reciprocity, filled with a resonance that responds endlessly to the light and wind invited into this place.














