Projects
Detail

庭に住む 札幌
Living in the Garden,Sapporo
SDレビュー 1999
入選
審査: | 林 昌二 播 繁 芦原 太郎 小川 晋一 |
掲載: | SDレビュー 1999 |
〈庭に住む-札幌〉
この住宅は、北海道、札幌市北西部のアーバンフリンジ(都市縁辺)に計画される。
計画は、比較的大きな土地が手に入りやすい地域において確保された約650㎡の敷地の特性と可能性を生かし、次の3つの主旨を基として構想されている。
1.大きな庭を確保すること。そして全ての居室が、庭の恵みを享受できる住居であること
2.敷地の特性である斜面を有効に生かした住居であること
3.従来の北の住まいにはない新たな型式と様相を備えた住居であること
〈2つの庭〉
住居型式を、敷地がもつ南向きの傾斜を利用し、住居外周の大部分を大地で囲みながら太陽の恵みを享受しうる南面を外気に開くものとする。この型式は、北の地の気候風土に適応するものでありながら先述の3つの主旨を最も効果的に具現するものとして選択された。
結果、2つの庭が現われる。
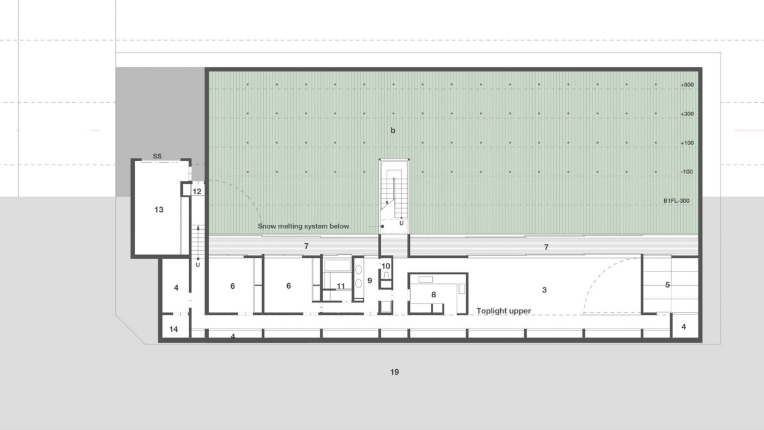
2つの庭には、それぞれ特色ある機能と表情が与えられている。上の庭は、住居の“エントリーウェイ”として住居の上部に、下の庭は、“白樺の森”として住居に面して設けられる。上の庭を“枯れた庭(Witherd Garden)”、下の庭を“豊穣な庭(Abundant Garden)”とした。2つの庭は、エントランスホール、階段を内蔵するガラスの箱によって連結される。
〈庭の恵み〉
2つの庭から住居への開口が、効果的に設けられる。上の庭からの開口は、住居の通路部分に間接的な採光をもたらす。下の庭からのそれは、全ての居室に四季折々の風景を伴った直接的な採光をもたらす。特にそこにしつらえられた二重のサッシュは、冬において庭と居室の境にサンルームを創り出す。また夏においては、全ての居室を庭にむかって大きく開け放ちながら、上の庭からの開口と連携して住居に良好な通風をもたらす。
SD Review 1999
Selected
Judge: | Shoji Hayashi Shigeru Ban Taro Ashihara Shinichi Ogawa |
Magazine: | SD Review 1999 |
〈Living in a Garden – Sapporo〉
This residence is planned for the urban fringe in the northwestern part of Sapporo, Hokkaido.
The design leverages the characteristics and potential of a relatively spacious site of approximately 650 square meters, based on the following three main principles:
1.To secure a large garden, and to create a residence where all rooms can enjoy the blessings of the garden.
2.To effectively utilize the sloped terrain characteristic of the site.
3.To establish a new form and appearance of dwelling not traditionally found in northern homes.
〈Two Gardens〉
The form of the residence is designed to take advantage of the site’s south-facing slope. Most of the residence is surrounded by earth, while the southern side opens to the air to receive the blessings of the sun. This form is well-suited to the climate and conditions of northern regions and was selected as the most effective way to embody the three core principles mentioned above.
As a result, two distinct gardens are created.
Each of the two gardens is endowed with its own unique function and expression. The upper garden, located above the residence, functions as the “entryway.” The lower garden, situated directly adjacent to the living spaces, is conceived as a “birch forest.” The upper garden is referred to as the “Withered Garden,” and the lower garden as the “Abundant Garden.” These two gardens are connected by a glass box containing the entrance hall and stairs. The lower part of the glass box incorporates a snow-melting tank, considering the need for snow removal during the winter.
〈The Blessings of the Garden〉
Openings are strategically placed to connect the two gardens with the residence. Openings from the upper garden provide indirect light to the interior corridors of the house. Openings from the lower garden bring direct light accompanied by seasonal scenery into all rooms. In particular, the double sashes installed here create a sunroom between the garden and interior spaces during winter. In summer, all rooms can be widely opened toward the garden, creating good cross-ventilation in collaboration with the upper garden openings.








